Vente Maison Cervione
REF:2657
**** EN COURS DE CONSTRUCTION ****
Envie d’investir dans un nouveau chez-vous ? Chaleureux, avec une touche d’authenticité ?
Découvrez en exclusivité chez Corse Patrimoine Immobilier, cette maison neuve avec une vue mer imprenable !
Bâtie dans une dimension très qualitative et se conformant aux exigences d’urbanisme locales, la villa s’intègre parfaitement dans le paysage.
Le bien se compose comme suit :
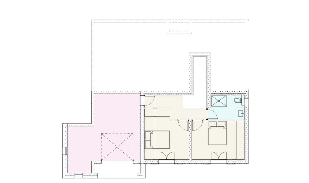
REZ-DE-CHAUSSÉE
– Entrée avec wc invité et lave-mains
– Séjour / cuisine de 50 m2
– Chambre avec salle d’eau
– Suite parentale avec salle de bain
– Terrasse de 30,66 m2
REZ-DE-JARDIN
– Salle de douche avec wc
– 2 chambres
– Garage
– Buanderie
Édifiée sur une parcelle de 800 m2, ce bien est idéal pour une famille, à deux pas de toutes commodités (boulangerie, poste, médecin, bar / tabac …) et notamment de la crèche, écoles et collège, chacun y trouvera son intérêt !
Plage, centre médical (kiné, dentiste, infirmiers, médecins …), supermarché, tabac / presse, soin et beauté, commerces divers à 7 minutes.
De très belles prestations sont incluses dans le prix du bien.
Terrain clos
Les informations sur les risques auxquels ce bien est exposé sont disponibles sur le site Géorisques : www.georisques.gouv.fr
Plan noAV2 – Villa 1









