Vente Maison Cervione
REF:2656
**** EN COURS DE CONSTRUCTION ****
 Envie d’investir dans un nouveau chez-vous ? Chaleureux, avec une touche d’authenticité ?
 Découvrez en exclusivité chez Corse Patrimoine Immobilier, cette maison neuve avec une vue mer imprenable !
 Bâtie dans une dimension très qualitative et se conformant aux exigences d’urbanisme locales, la villa s’intègre parfaitement dans le paysage.
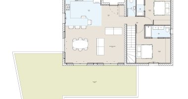
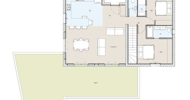
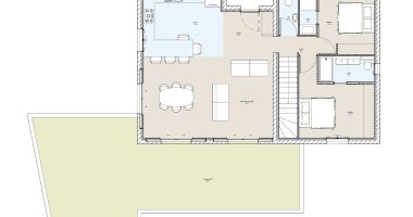
Le bien se compose comme suit :
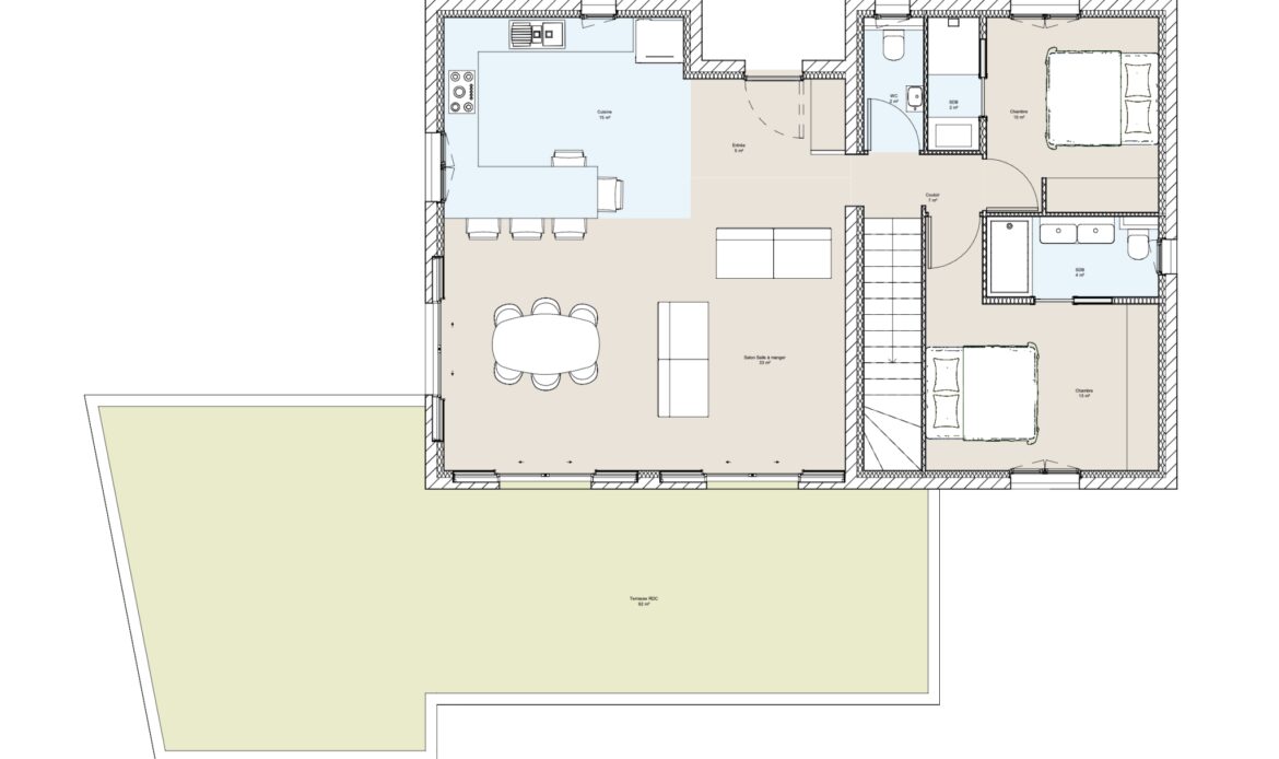
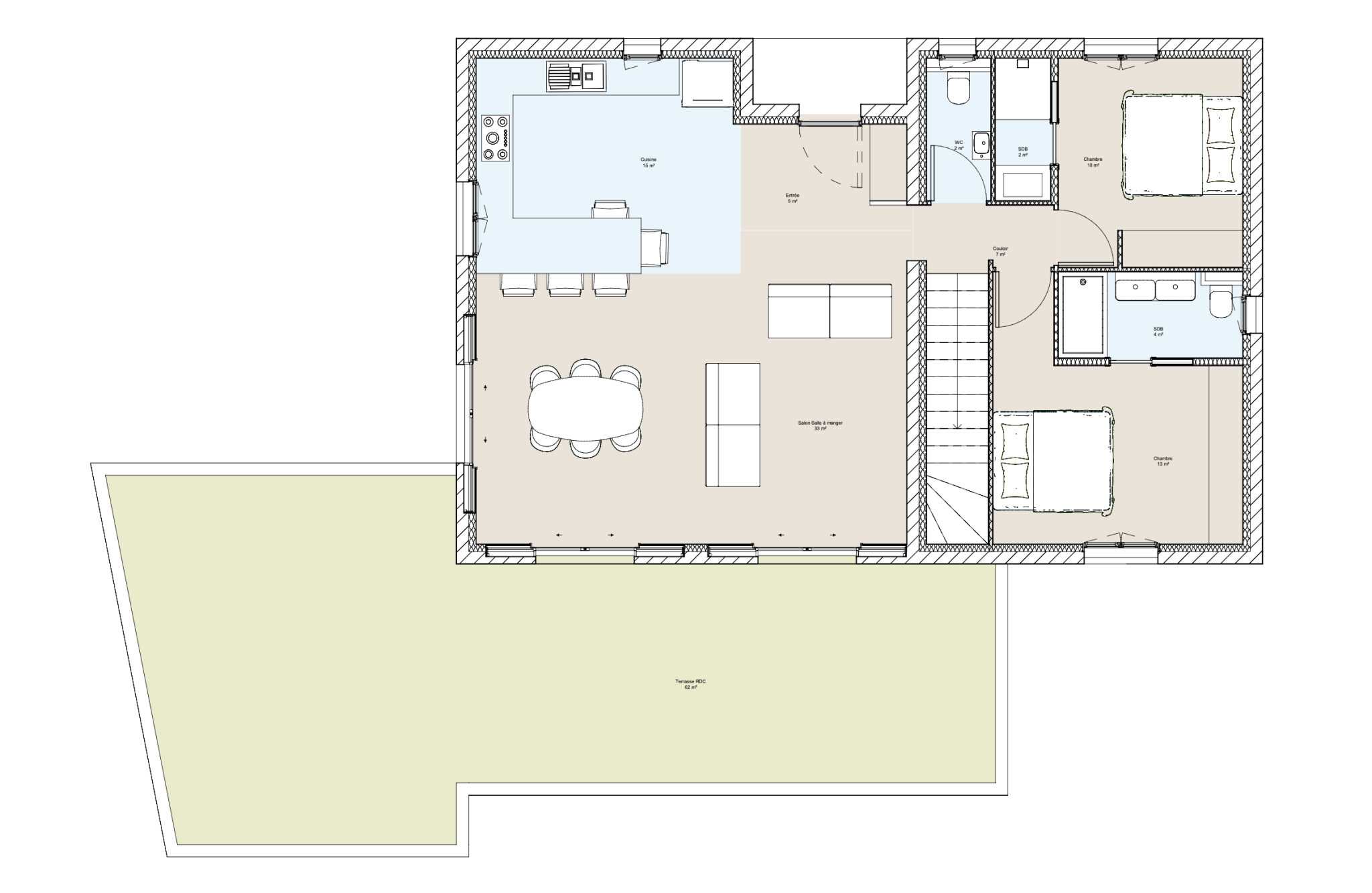
 REZ-DE-CHAUSSÉE
 – Entrée avec wc invité et lave-mains
 – Séjour / cuisine de 52 m2
 – Chambre avec salle d’eau
 – Suite parentale avec salle d’eau
 – Terrasse de 60 m2
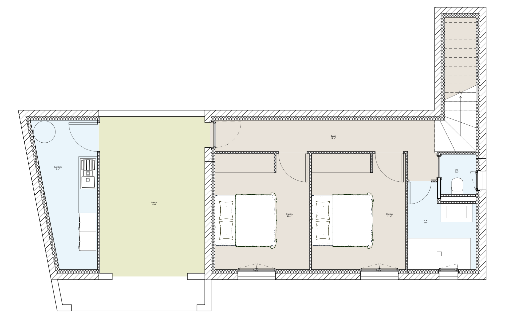
 REZ-DE-JARDIN
 – Salle de d’eau
 – Wc indépendant
 – 2 chambres
 – Garage
 – Buanderie
 Édifiée sur une parcelle de 800 m2, ce bien est idéal pour une famille, à deux pas de toutes commodités (boulangerie, poste, médecin, bar / tabac …) et notamment de la crèche, écoles et collège, chacun y trouvera son intérêt !
 Plage, centre médical (kiné, dentiste, infirmiers, médecins …), supermarché, tabac / presse, soin et beauté, commerces divers à 7 minutes.
 De très belles prestations sont incluses dans le prix du bien
 Terrain clos
Les informations sur les risques auxquels ce bien est exposé sont disponibles sur le site Géorisques : www.georisques.gouv.fr
Plan noBV1 – Villa 2
Honoraires charge: acquéreur – Pourcentage: % – Prix net vendeur : €
 
				 
								









 
                         
                         
                         
                         
                             
                             
                             
                             
                             
                             
														 
														