Vente Appartement Sari solenzara
REF:
Nouveauté à découvrir en plein cœur de Solenzara !
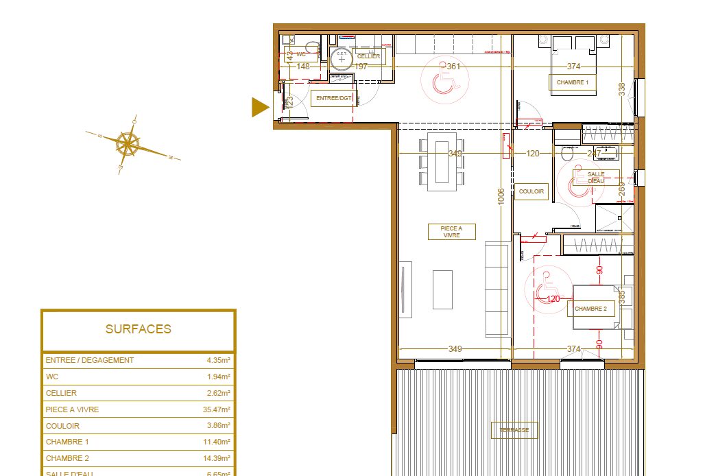
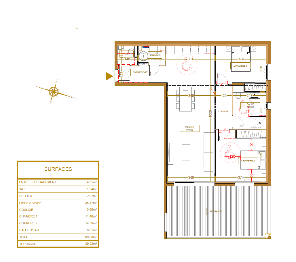
 Dans une résidence de prestige offrant un cadre de vie exceptionnel, découvrez ce magnifique appartement de type 3, situé au 2ème étage et profitant d’une vue imprenable sur la mer.
 Avec une proximité immédiate des commerces et des plages, cet appartement bénéficie d’un emplacement idéal, dans une résidence de standing alliant confort et élégance.
 D’une superficie généreuse de 80.75 m2, ce bien se compose d’une pièce de vie lumineuse ouvrant sur une terrasse de 30.02 m2 avec vue mer, deux chambres, ainsi que d’une salle d’eau avec WC.
 La résidence de standing assure un environnement paisible et raffiné.
 Une opportunité rare pour un appartement élégant, idéal comme résidence principale, pied-à-terre ou investissement de qualité.
Honoraires charge: acquéreur – Pourcentage: 4.17 % – Prix net vendeur : 417600 €
 
				 
								







 
                         
                         
                         
                             
                             
                             
                             
                             
                             
														 
														