Vente Appartement Solaro
REF:2565
Nous sommes ravis de vous présenter ce nouveau programme immobilier sur la commune de Solaro, offrant une opportunité unique de vivre dans un cadre enchanteur.
Cette résidence exclusive, composée de 9 appartements, bénéficie d’une localisation idéale pour profiter pleinement de la beauté et de la tranquillité de la région.
Une Situation Géographique Exceptionnelle :
– Accès à la mer : Profitez d’une proximité immédiate avec la mer, accessible à pied ou en vélo en quelques minutes seulement.
– Commodités :Brasserie et boulangerie à deux pas pour votre quotidien. – Projets à venir : Un supermarché est en cours de réalisation à proximité pour plus de commodité.
Frais de notaire réduits à 2,5 % : Un avantage supplémentaire pour vous accompagner dans votre achat.
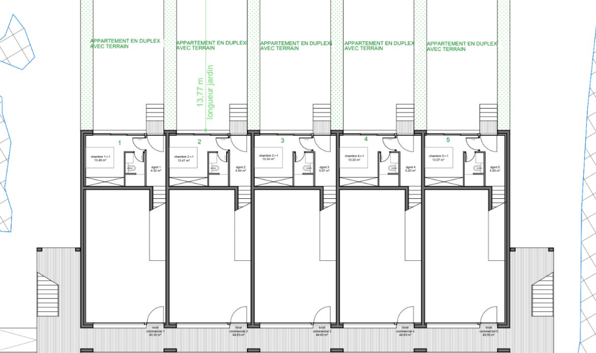
Nous vous proposons un appartement T3 en duplex d’une superficie de 60,92 m2. Réparti sur deux niveaux, il se compose à l’étage d’une entrée avec une pièce de vie de 27,86 m2, d’une chambre de 10,50 m2, d’une salle d’eau avec WC de 4,56 m2, ainsi que d’une terrasse de 22,34 m2. Au rez-de-chaussée, vous trouverez une chambre supplémentaire avec sa propre salle d’eau et WC, d’une surface de 13,07 m2. L’appartement bénéficie également d’un jardin privatif de 89,64 m2 en jouissance exclusive.
PLUS QUE 6 APPARTEMENTS DISPONIBLES !
Pour plus d’informations, n’hésitez pas à nous contacter. Ne manquez pas cette chance, ces biens rares et exceptionnels rencontrent déjà un grand succès !
Les informations sur les risques naturels auxquels ce bien est exposé sont disponibles sur le site Géorisques : www.georisques.gouv.fr
Honoraires charge: vendeur









